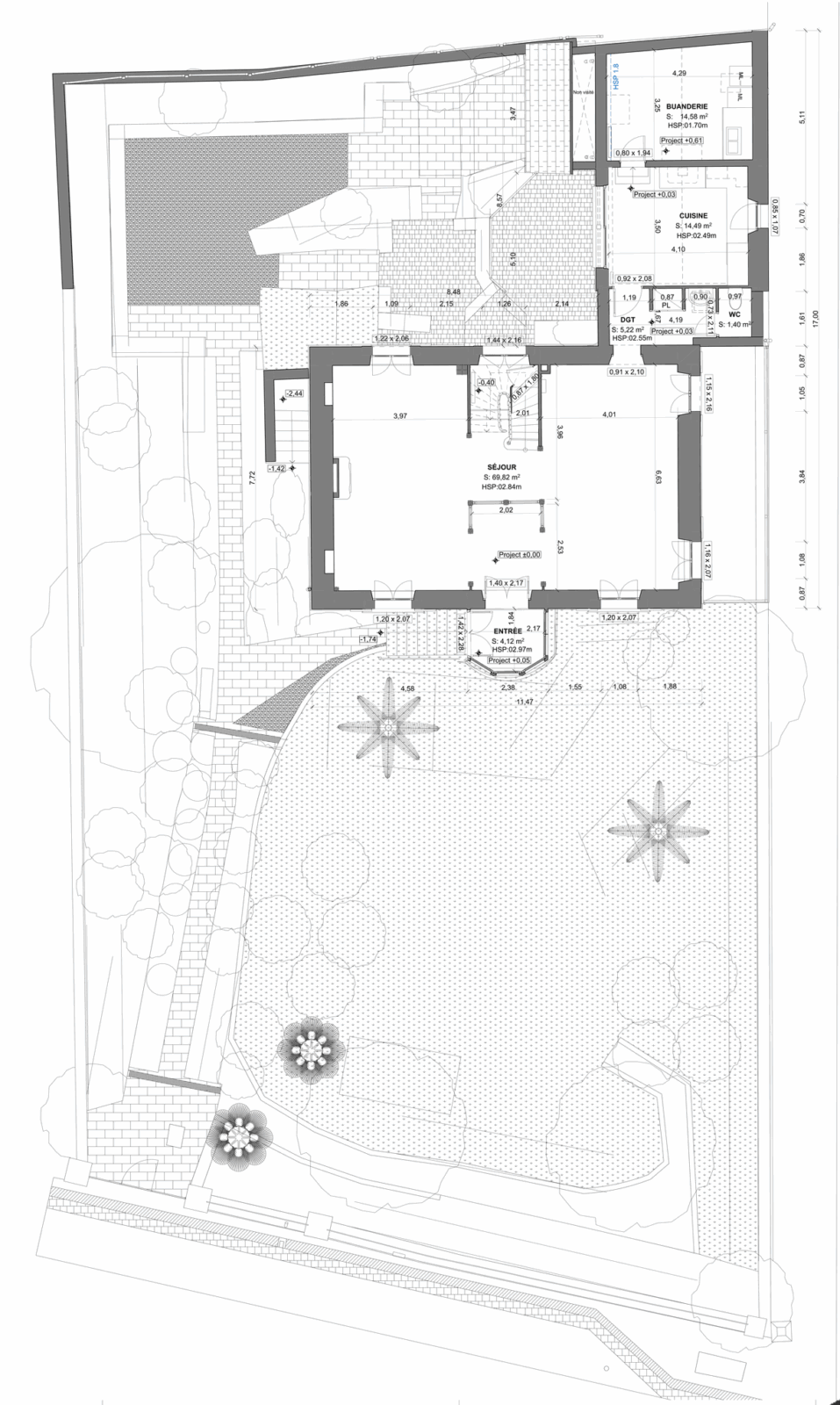
BIM GEM : quels livrables attendre à la suite d’un relevé scan 3D ?
Après un relevé scan 3D, un projet BIM GEM permet de livrer des données fiables, structurées et exploitables pour la gestion, l’exploitation et l’évolution d’un bâtiment existant. Ces livrables vont bien au-delà d’une simple maquette 3D : ils constituent une base numérique pérenne pour piloter le bâtiment dans le temps.
Cet article détaille concrètement quels livrables attendre, à quoi ils servent et comment ils sont produits chez Archiscan.
Qui est concerné par les livrables BIM GEM ?
Les livrables issus d’un relevé scan 3D et d’une démarche BIM GEM s’adressent principalement à :
✔ Maîtres d’ouvrage et gestionnaires de patrimoine
✔ Collectivités et établissements publics
✔ Gestionnaires techniques (maintenance, exploitation)
✔ Architectes et bureaux d’études intervenant sur l’existant
Le point commun : le besoin de données fiables sur un bâtiment existant, souvent ancien, transformé ou mal documenté.
